Gherang House

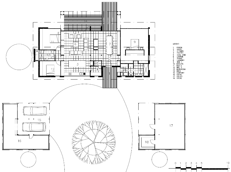
The Gherang house designed in 2005 is now operating as a zero net emissions domestic occupation of a site. Passive thermal design ensures that air-conditioning is not necessary and heating is kept to a minimum. Timber fuel backup to solar hot water and slab hydronic heating system is grown on site meaning that more CO2 is sequestered in regrowth than will ever be given off during combustion. A 3kW photovoltaic system generates more electricity than consumed and excess is fed back into the grid as renewable energy. Income from electricity sales to the grid fully offset all the utility operating costs including the worm based black-water treatment system maintenance contract and chainsaw costs for cutting firewood.

